Property Type
House, House
Parking
Garage: No, 0 parking
MLS #
1291828
Size
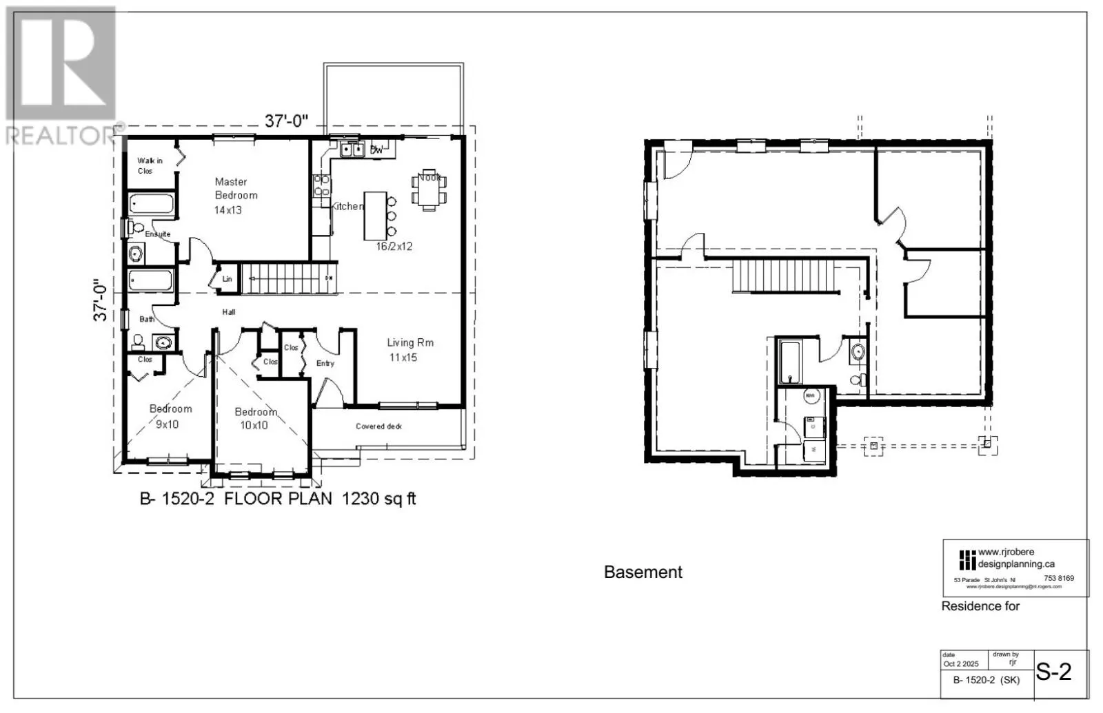
2460 sqft
Basement
-
Listed on
-
Lot size
-
Tax
-
Days on Market
-
Year Built
2025
Maintenance Fee
-
