Property Type
House, House
Parking
Garage: Yes, 1 parking
MLS #
1291110
Size
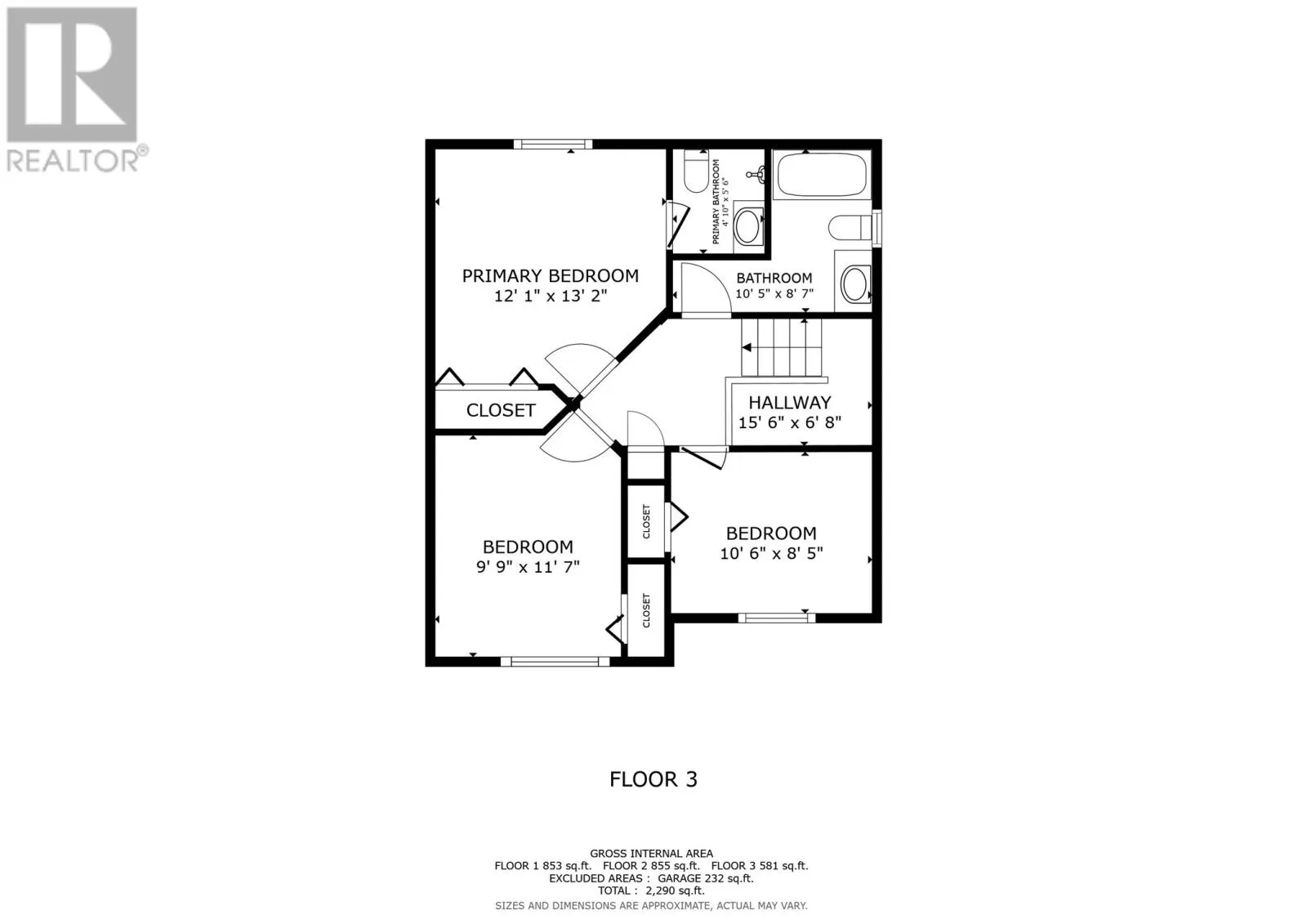
2291 sqft
Basement
-
Listed on
-
Lot size
-
Tax
-
Days on Market
-
Year Built
2004
Maintenance Fee
-